A louer : treuil au sol électrique de grande capacité 5000 kg rallongé variateur de vitesse

Référence : TE5000LVV

Charge utile : 5 000 kg

Hauteur de levage : 240 m

Poids : 1 225 kg

Charge utile

5 000 kg

Hauteur de levage

240 m

Poids

1 225 kg

Treuil au sol électrique 5 000 kg tambour rallongé avec variateur de vitesse doté d’une grande capacité d’enroulement de câble. Robuste, il est équipé d’un châssis préalablement percé et d’une protection tubulaire ce qui lui permet de répondre à de multiples utilisations sur chantier. Le variateur de vitesse électronique permet des démarrages et des arrêts en douceur. La vitesse est alors réglable de 10 à 100 %, progressivement par potentiomètre. Ce modèle est conçu pour toutes les applications de levage et de traction/halage de charges.

Collectivités & Services Techniques
Déménagement
Eau & Assainissement
Éclairage & Alimentation Temporaire
Energies renouvelables (Éolien, Solaire, Hydraulique)
Entretien des espaces verts
Ferroviaire & Travaux sur voies
Festivals, Expositions, Sport
Gaz, Pétrole & Hydrocarbures
Gros œuvre & Second œuvre
Installation thermique, sanitaire
Levage & Manutention
Levage & Tirage
Maintenance industrielle
Montage de Structures Scéniques
Nucléaire & Installations sensibles (centrales, sites traitement déchets)
Ouvrages d’art (ponts, tunnels, barrages)
Réhabilitation & Renforcement de structures
Réseaux électriques (Haute et basse tension, souterrains & aériens)
Revêtement
Terrassement & Génie civil
Traitement des Déchets & Recyclage
Travail en hauteur
Voirie et Réseaux Divers (VRD)

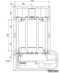
Caractéristiques techniques

Charge utile :
5 000 kg
Alimentation :
400 V tri/50 Hz
Puissance moteur :
11 kW
Vitesse :
1 à 10 m/min
Capacité câble :
240 m
Diamètre câble :
18 mm
Poids (sans câble) :
1 225 kg
Longueur télécommande :
3 m

Demander un devis

Adresse du chantier

Observations

  • La longueur utile du câble de levage est de 237 m (tours morts)
  • Équipé d’un crochet de sécurité fixe avec une ouverture de 74 mm
  • Moteur type levage, classe F
  • Coffret électrique équipé d’un limiteur électronique de charges et d’un variateur de vitesse
  • Fourni avec une télécommande non débrochable basse tension 24 V avec arrêt d’urgence
  • Équipé d’un frein électromagnétique à disque se bloquant en cas de manque de courant
  • Équipé d’un châssis de chantier avec protection tubulaire
  • Équipé de deux points d’élingage en partie haute
  • Fins de course haut et bas réglables : le réglage des fins de course doit être fait avant l’utilisation du treuil par l’utilisateur en fonction de la hauteur de travail
  • Câble électrique d’1 m équipé d’une prise mâle triphasée à 3 pôles + Terre (32 A)
  • Dans le cadre d’une alimentation par groupe électrogène prévoir une puissance de 80 KVA
  • Dans le cadre d’une alimentation sur secteur prévoir un disjoncteur 63 A courbe D
  • Le châssis est percé en 8 points de diamètre 27 mm permettant l’ancrage au sol. Il est interdit de percer ou de souder le châssis du treuil
  • Efforts à l’arrachement pour TE5000VV : 6 220,5 kg. Le calcul est basé avec une pleine capacité de câble sur le tambour. Le départ du câble est à l’horizontal par le dessus du tambour
  • Les efforts indiqués sont pour chaque point d’ancrage du treuil (attention : tous les points d’ancrage doivent être impérativement utilisés).

Options

  • Longueur télécommande : 10 m

Schémas

Matériels associés