Location monte-charges avec accompagnant 500 kg

Référence : MBC500

Charge utile : 500 kg

Hauteur de levage : 120 m

Poids : [N]

Charge utile

500 kg

Hauteur de levage

120 m

Poids

[N]

Monte-charges avec accompagnant 500 kg. Cette plate-forme de transport est destinée pour le levage des personnes et des matériaux sur chantier. Grâce à sa cabine fermée, elle permet un transport en toute sécurité sur de grandes hauteurs. Les portes d’étage permettent, de par leur conception, de sécuriser chaque niveau desservi interdisant l’ouverture sans la présence de la cabine. Il permet une grande souplesse dans la durée et l’emplacement et diminue la pénibilité. Cette solution de manutention verticale est souvent installée sur échafaudage. Implantation possible sur la façade d’un bâtiment.

Collectivités & Services Techniques
Déménagement
Eau & Assainissement
Éclairage & Alimentation Temporaire
Energies renouvelables (Éolien, Solaire, Hydraulique)
Entretien des espaces verts
Ferroviaire & Travaux sur voies
Festivals, Expositions, Sport
Gaz, Pétrole & Hydrocarbures
Gros œuvre & Second œuvre
Installation thermique, sanitaire
Levage & Manutention
Levage & Tirage
Maintenance industrielle
Montage de Structures Scéniques
Nucléaire & Installations sensibles (centrales, sites traitement déchets)
Ouvrages d’art (ponts, tunnels, barrages)
Réhabilitation & Renforcement de structures
Réseaux électriques (Haute et basse tension, souterrains & aériens)
Revêtement
Terrassement & Génie civil
Traitement des Déchets & Recyclage
Travail en hauteur
Voirie et Réseaux Divers (VRD)

Caractéristiques techniques

Charge utile :
500 kg
Nombre maximum de personne :
3
Vitesse de levage :
12 m/min
Hauteur maximum :
120 m
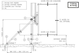
Distance maximum entre les ancrages :
6 m
Alimentation :
400 V tri/50 Hz
Puissance moteur :
2,2 kW
Dimensions cabine (Lxl) :
1 600 x 1 320 mm
Dimensions hors tout :
2 320 mm

Demander un devis

Adresse du chantier

Observations

  • Équipé d’un dispositif de contrôle de sur-vitesse (frein de secours parachute)
  • Non équipé de dispositif de contrôle de surcharge
  • Équipé d’un détecteur de fin de mâts
  • Équipé d’une grille anti-écrasement sous la cabine et d’une grille de protection de mât (sécurité crémaillère)
  • Les rampes de chargement et de déchargement sont sécurisées par des contacteurs (blocage de la cabine si une porte est mal verrouillée et garde-corps sur la rampe de déchargement)
  • Le mât terminal est avec une crémaillère interrompue de couleur rouge
  • Les arrêts d’étage et les ancrages sont réglables
  • Portes palières coulissantes à verrouillage mécanique sécurisé interdisant l’ouverture en cas d’absence de la cabine à chaque niveau
  • La cabine est équipée d’une toiture
  • Guide câble tous les 9 m
  • Passerelle d’accès pour la fixation des ancrages sur la façade
  • Deuxième rampe de chargement latéral
  • Dans le cadre d’une alimentation par groupe électrogène prévoir une puissance de 20 KVA
  • Dans le cadre d’une alimentation sur secteur prévoir un disjoncteur 16 A triphasé courbe D.

Options

  • Rampe d’accès
  • Encagement
  • Appels d’étage

Schémas

Matériels associés