Location monte-charges 500 kg monophasé

Référence : MB500/MONO

Charge utile : 500 kg

Hauteur de levage : 120 m

Poids : [N]

Charge utile

500 kg

Hauteur de levage

120 m

Poids

[N]

Monte-charges 500 kg monophasé. Grâce à sa cabine fermée, ce monte-matériaux permet un transport de charges en toute sécurité sur de grandes hauteurs. Les portes d’étage permettent, de par leur conception, de sécuriser chaque niveau desservi interdisant l’ouverture sans la présence de la cabine. Il est très utilisé généralement sur échafaudage pour avoir un système de déchargement et de manutention verticale sûr et rapide. Implantation possible sur la façade d’un bâtiment. Grande souplesse dans la durée et l’emplacement. Alimentation monophasée.

Collectivités & Services Techniques
Déménagement
Eau & Assainissement
Éclairage & Alimentation Temporaire
Energies renouvelables (Éolien, Solaire, Hydraulique)
Entretien des espaces verts
Ferroviaire & Travaux sur voies
Festivals, Expositions, Sport
Gaz, Pétrole & Hydrocarbures
Gros œuvre & Second œuvre
Installation thermique, sanitaire
Levage & Manutention
Levage & Tirage
Maintenance industrielle
Montage de Structures Scéniques
Nucléaire & Installations sensibles (centrales, sites traitement déchets)
Ouvrages d’art (ponts, tunnels, barrages)
Réhabilitation & Renforcement de structures
Réseaux électriques (Haute et basse tension, souterrains & aériens)
Revêtement
Terrassement & Génie civil
Traitement des Déchets & Recyclage
Travail en hauteur
Voirie et Réseaux Divers (VRD)

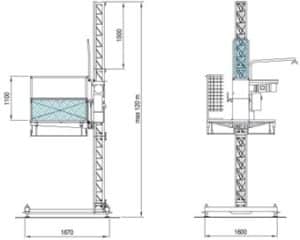
Caractéristiques techniques

Charge utile :
500 kg
Vitesse de levage :
20 m/min
Hauteur maximum :
120 m
Distance max entre les ancrages :
6 m
Alimentation :
230 V mono/50 Hz
Puissance moteur :
3 kW
Dimensions cabine (L x l) :
1 500 x 1 000 mm
Hauteur hors tout :
1 680 mm

Demander un devis

Adresse du chantier

Observations

  • Interdit au transport de personnel
  • Installation possible sur échafaudage
  • Possibilité de desservir plusieurs niveaux
  • Équipé d’un dispositif de contrôle de survitesse (frein de secours parachute)
  • Non équipé de dispositif de contrôle de surcharge
  • Équipé d’un détecteur de fin de mâts
  • Équipé d’une grille anti-écrasement et d’une grille de protection de mât (sécurité crémaillère)
  • Les rampes de chargement et de déchargement sont équipées de contacteurs (blocage de la cabine si une porte est mal verrouillée)
  • Le mât terminal est de couleur rouge (crémaillère interrompue)
  • Les arrêts d’étage et les ancrages sont réglables
  • La cabine pivote à 90° pour le déchargement aux étages (position fixe possible)
  • Portes palières basculantes sécurisées par un système, mécanique ou électrique, qui interdit l’ouverture en l’absence de la cabine à chaque niveau
  • Guide câble tous les 9 m
  • Monte-charge interdit au personnel
  • Dans le cadre d’une alimentation par groupe électrogène prévoir une puissance de 20 KVA
  • Dans le cadre d’une alimentation sur secteur prévoir un disjoncteur 32 A monophasé courbe D.

Options

  • Rampe d’accès
  • Encagement
  • Appels d’étage

Schémas

Matériels associés