Location étai de fenêtre pour treuil potence télescopique

Référence : ETAI DE FENETRE

Charge utile : [N]

Hauteur de levage : [N]

Poids : 44 kg

Charge utile

[N]

Hauteur de levage

[N]

Poids

44 kg

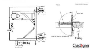
Support de fixation sur fenêtre pour un treuil potence télescopique. Il est idéal pour travailler sur des chantiers de rénovation où il y a peu d’espace.

Collectivités & Services Techniques
Déménagement
Eau & Assainissement
Éclairage & Alimentation Temporaire
Energies renouvelables (Éolien, Solaire, Hydraulique)
Entretien des espaces verts
Ferroviaire & Travaux sur voies
Festivals, Expositions, Sport
Gaz, Pétrole & Hydrocarbures
Gros œuvre & Second œuvre
Installation thermique, sanitaire
Levage & Manutention
Levage & Tirage
Maintenance industrielle
Montage de Structures Scéniques
Nucléaire & Installations sensibles (centrales, sites traitement déchets)
Ouvrages d’art (ponts, tunnels, barrages)
Réhabilitation & Renforcement de structures
Réseaux électriques (Haute et basse tension, souterrains & aériens)
Revêtement
Terrassement & Génie civil
Traitement des Déchets & Recyclage
Travail en hauteur
Voirie et Réseaux Divers (VRD)

Caractéristiques techniques

Dimensions (L x l x H) :
340 x 640 x 1 320 mm
Poids :
44 kg

Demander un devis

Adresse du chantier

Schémas

Matériels associés