Louez en toute sérénité votre ascenseur de chantier 2 000kg/22 personnes

Référence : MBA 2000EU

Charge utile : 2 000 kg

Hauteur de levage : 150 m

Poids : [N]

Charge utile

2 000 kg

Hauteur de levage

150 m

Poids

[N]

Bénéficiant d’une cabine entièrement fermée, l’ascenseur de chantier 2 000 kg vous permet d’accéder aux différents niveaux en toute sécurité depuis l’extérieur d’un bâtiment.

Collectivités & Services Techniques
Déménagement
Eau & Assainissement
Éclairage & Alimentation Temporaire
Energies renouvelables (Éolien, Solaire, Hydraulique)
Entretien des espaces verts
Ferroviaire & Travaux sur voies
Festivals, Expositions, Sport
Gaz, Pétrole & Hydrocarbures
Gros œuvre & Second œuvre
Installation thermique, sanitaire
Levage & Manutention
Levage & Tirage
Maintenance industrielle
Montage de Structures Scéniques
Nucléaire & Installations sensibles (centrales, sites traitement déchets)
Ouvrages d’art (ponts, tunnels, barrages)
Réhabilitation & Renforcement de structures
Réseaux électriques (Haute et basse tension, souterrains & aériens)
Revêtement
Terrassement & Génie civil
Traitement des Déchets & Recyclage
Travail en hauteur
Voirie et Réseaux Divers (VRD)

Caractéristiques techniques

Charge utile :
2 000 kg
Nombre max de personne :
22
Vitesse de montée/descente en charge :
40 m/min
Vitesse de descente cabine vide :
54 m/min
Hauteur maximum :
150 m
Distance maximum entre des ancrages :
9 m
Alimentation :
400 V tri/50 Hz
Puissance moteur :
2 x 11 kW
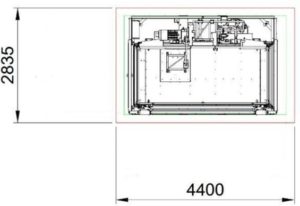
Dimensions intérieures de cabine (L x l x H) :
3 200 x 1 450 x 2 150 mm

Demander un devis

Adresse du chantier

Observations

  • Equipé d’un dispositif de contrôle de survitesse (frein de secours parachute)
  • Equipé d’un dispositif de contrôle de surcharge, obligatoire à partir de 1 000 kg
  • Equipé d’un détecteur de fin de mâts
  • Le mât terminal est avec une crémaillère interrompue de couleur rouge
  • Les arrêts d’étage et les ancrages sont réglables
  • Distance entre guide câble : 12 m (6 m dans les zones venteuses)
  • Passerelle d’accès pour la fixation des ancrages sur la façade (montage des mâts à partir du toit)
  • Encagement intégré à la machine
  • Porte palière coulissante de 1m10 de haut avec un déverrouillage électromécanique
  • Alimentation sur secteur, prévoir un disjoncteur 63 A triphasé courbe D, différentiel 300 mA
  • Mise en place impérative d’une dalle béton de niveau au sol
  • Transport sur remorque camion bras de grue.

Options

  • Appels d’étages: A16/037

Schémas

Matériels associés